Super-Mini Home Selections:

The New Ross

The New Ross is a two bedroom 600 sq. ft. bungalow with oak kitchen cabinets. Ideal for the young family just starting out or for the couple retiring. The Super-Mini homes are built on an engineered frost wall foundation.

Floor Plan Download Photo Download Credits Download

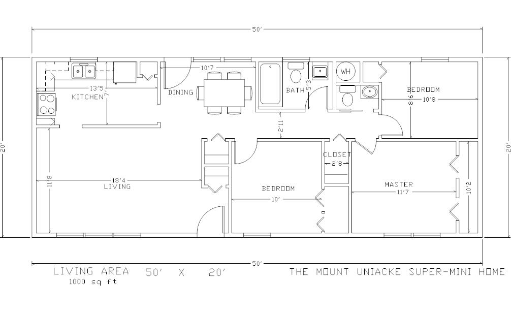
The Mount Uniacke

The Mount Uniacke is a 1000 sq. ft. three bedroom one and one-half bath bungalow with oak kitchen cabinets. Ideal for families constructed on an engineered frost wall.

Floor Plan Download Photo Download Credits Download
Sample Shell Package Rooftight InstallationVideo
Sample Custom Package Rooftight InstallationVideo

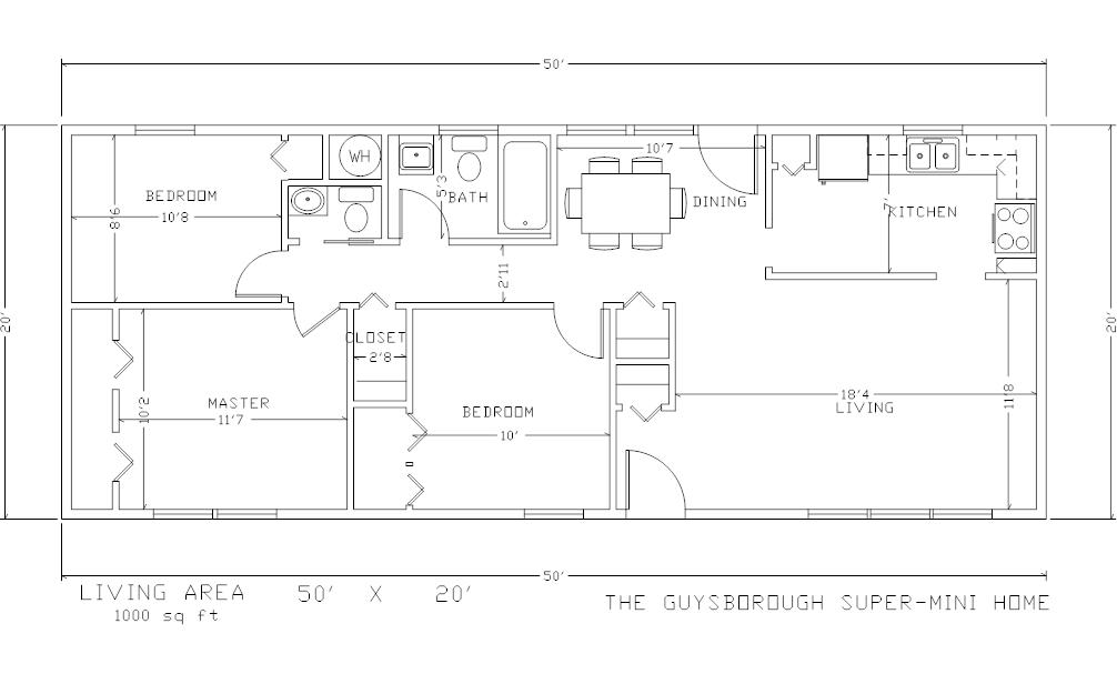
The Guysborough

The Guysborough is a 1000 sq. ft. Three bedroom bungalow constructed on an engineered frost wall. It comes complete with a bath and one-half and oak kitchen cabinets.

Floor Plan Download Photo Download Credits Download

 

Price List Download

Shell Package Specifications Download

Custom Package Specifications Download

Custom Installation Specifications Download